Appartement 4.5 pièces à vendre à Evionnaz

CHF 725'000.-
4.5 2 150 m2 CHF 450.-

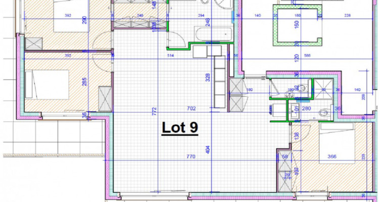
BEL APPARTEMENT D'ANGLE EN ATTIQUE AU CENTRE DU VILLAGE D'EVIONNAZ

Au cœur du village d’Evionnaz, dans un immeuble aux finitions exceptionnelles, à quelques minutes des commerces, école, de la gare ou encore de l’autoroute, ce bien unique à la vente offrira à ses nouveaux propriétaires, un cadre de vie et un confort remarquable.
Vue lointaine et dégagée sur le Valais et ses montagnes

- Finitions soignées dans un immeuble de haute qualité orné de pierres naturelles
- Hall d'entrée , placards
- WC visiteurs et lave-mains
- Emplacement colonne, machine à laver et à sécher
- Vaste séjour lumineux avec baies vitrées donnant accès à une grande terrasse de 30m2
- Cuisine ouverte sur salle à manger
- Suite parentale avec dressing et accès direct à la salle de bain
- 2ème suite avec salle de douche
- Chambre/bureau attenante à la chambre parentale avec balcon et vue
- Terrasse et un balcon totalisant 40 m2 env.
- Accès par ascenseur couvert

- une place de parking couverte
- une cave de 10 m2

Pour tout renseignements ou visite sur rendez-vous, le samedi également, veuillez m'appeler au 079 201 79 05
Françoise De Kock


Demander plus d'infos

Françoise De Kock

+41 79 201 79 05

Annonces similaires

CHF 690'000.-
Fully 7.46 km 4.5 96 m2
Appartement 3 chambres lumineux - Parfait état - Quartier calme FullyDécouvrez cet appartement lumineux et chaleureux, offrant une vue imprenable sur les montagnes environnantes. Niché dans un quartier calme, ce bien est idéal pour les familles à la recherche de tranquillité et d'espace. Grâce à son exposition sud-ouest, l'appartement bénéficie d'une belle luminosité tout au long de la journée.Construit...
Demande d'infos
CHF 695'000.-
Bex 8.69 km 5.5 170 m2
Exclusif: Appartement triplex de 5.5 pièces avec garageDans un immeuble contigu récemment rénové et situé au c?ur de Bex proche de la ligne du BVB et du Quai de l'Avançon, trois lots sont disponibles proche des commerces du centre du village.Entièrement rénové avec des matériaux de qualité, ce bien de 5.5 pièces sur trois niveaux présente un potentiel immense pour vos projets...
Demande d'infos
CHF 649'000.-
Martigny 8.97 km 4.5 110 m2
4,5 pièces avec vue à MartignyNiché dans un environnement calme et résidentiel prisé de la cité Octodurienne, cet objet est idéal pour les familles à la recherche d'un lieu lumineux, spacieux et chaleureux.À l'intérieur, la disposition des pièces a été pensée pour maximiser le confort de ses occupants. Avec trois chambres spacieuses, ce bien offre des espaces bien définis pour chaque...
Demande d'infos
CHF 808'000.-
Martigny 8.97 km 4.5 118 m2
Splendide 4,5 pièces à la Fusion - MartignySitué dans le quartier prisé de la Fusion à Martigny, cet appartement offre un cadre de vie urbain exceptionnel avec un accès facilité à toutes les commodités. Parfait pour les familles, il vous séduira par son ambiance lumineuse et chaleureuse.Récemment rénové avec goût, cet appartement se distingue par l'utilisation de matériaux haut de gamme,...
Demande d'infos
CHF 710'000.-
Monthey 10.04 km 4.5 120 m2
Dernier étage 4,5 pièces avec vue montagnes - Certifié MinergieDécouvrez cet appartement exceptionnel au dernier étage, offrant une vue imprenable sur les montagnes. Parfaitement adapté aux familles, il se situe dans un quartier résidentiel prisé de Monthey. Sa proximité avec les commodités essentielles en fait un choix idéal pour ceux qui recherchent confort et praticité au quotidien.En...
Demande d'infos
CHF 720'000.-
Monthey 10.04 km 4.5 115 m2
Monthey - lumineux 4,5 piècesMagnifique appartement, très récent, alliant matériaux de qualité et optimisation de l'espace, idéal pour les familles. Situé au c?ur de la ville et à deux pas de la gare de Monthey, cet objet vous offre une proximité inégalée avec toutes les commodités.L'appartement, sis au quatrième étage d'un immeuble de cinq niveaux, se répartit harmonieusement et offre...
Demande d'infos
CHF 660'000.-
Collombey-Muraz 11.93 km 4.5 123 m2
Spacieux et moderne - 4,5 pièces à CollombeyDécouvrez cet appartement de 4,5 pièces, au premier étage, parfaitement optimisé pour répondre aux exigences d'une famille moderne. Situé au c?ur de Collombey, entre lac et montagne, offre un cadre exceptionnel avec un grand nombre de commodités à proximité immédiate. Laissez-vous séduire par sa cuisine ouverte, véritable c?ur de la maison,...
Demande d'infos
CHF 640'000.-
Val-d'Illiez 12.66 km 4 56 m2
Refuge familial face aux Dents du Midi, au pied des pistes!Découvrez un appartement exceptionnel à Champoussin, au pied des pistes. Situé dans un cadre paisible, cet appartement offre une vue imprenable sur les majestueuses Dents du Midi. Bénéficiant d'une exposition plein sud, il est baigné de lumière tout au long de la journée.Ce bien se distingue par l'utilisation de matériaux de qualité...
Demande d'infos
CHF 730'000.-
Morgins 14.53 km 4.5 122 m2
Spacieux 4 pièces avec jardin privatif proche des pistesDécouvrez un appartement exceptionnel qui allie confort et praticité, grâce à une belle exposition et un état général irréprochable après une rénovation complète. Vous profiterez d'une optimisation de l'espace efficace, avec une terrasse offrant une vue imprenable sur les montagnes, le tout à proximité de toutes les commodités et...
Demande d'infos