Appartement 3.5 pièces à vendre à Port-Valais

CHF 900'000.-
3.5 157 m2
Annonce non active

Magnifique attique avec vue sur le lac et la marina

Au Bouveret, splendide attique neuf avec vue sur le lac et la Marina, finitions de haut standing

Cet très bel appartement minergie est disposé comme suit :

- Accès par l'ascenceur au dernier étage ou par les escaliers,
- Hall de distribution avec 4 mètres de placards
- bureau
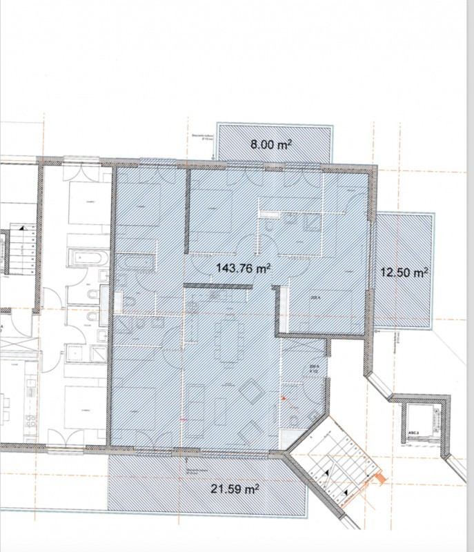
- suite parentale de 38 m2 avec :

baignoire ilôt, double-lavabos, douche italienne et wc, magnifique terrasse de 21,59 m2, dressing

- wc visiteurs ML ( buanderie privée )
- chambre de 14,3 m2

Un séjour, salle-à-manger et cuisine d'env. 46 m2 avec deux terrasses, orientation sud et ouest, l'une avec la vue sur le lac et le port du Bouveret, l'autre sur la Marina
cuisine de Dietrich avec un équipement très complet et luxueux ( descriptif complet à disposition )
Cave à vins

SITUATION

A quelques centaines de mètres de la Marina du Bouveret, proche de toutes les commodités ( école, commerces, services )

LE BOUVERET PORT-VALAIS

Proche des axes autoroutiers de Villeneuve-Rennaz ( 8 km ), à 11 km de villeneuve, 45 km de Lausanne, 66 km de Genève, Bouveret se trouve sur le canton du Valais et bénéficie de sa fiscalité avantageuse ainsi que de sa grande qualité de vie

Situé entre le lac et les montagne le Bouveret-Port-Valais bénéficie d'un emplacement de rêve au bord du lac léman. La commune s'est beaucoup développée depuis 20 ans et est devenu un lieu de villégiature et un centre d'intérêt touristique. Son port avec sa grande capacité d'acceuil en fait un lieu central pour tout ce qui a trait au sport et aux activités nautiques et aquatiques. Le centre aquatique " Aquarc, le swiss Vapeur Parc, sont très visités tout au long de l'année, l'hiver la commune bénéficie de la proximité des pistes de skis et grandes stations, à seulement 20-30 mn.











Demander plus d'infos

Annonces similaires

CHF 895'000.-
Vouvry 4.92 km 5.5 153 m2
Exclusif : magnifique duplex de 5.5 pièces au centre du vieux villageSitué au coeur de Vouvry au bord d'une large place pavée, ce magnifique appartement en duplex est en PPE avec un deuxième lot à l'étage supérieur.Il comporte un large espace de jour avec un salon équipé d'un poële, une salle à manger lumineuse se prolongeant par un balcon et une magnifique cuisine avec un ilot central et...
Demande d'infos
CHF 890'000.-
Rennaz 4.95 km 4.5 2 2 129 m2 918 m2
Roccabella Immo vous propose ce superbe appartement de 4.5 pièces, situé au rez-de-chaussée d’une résidence récente construite en 2020. Lumineux et spacieux, il séduit par ses volumes généreux, ses finitions haut de gamme et sa vue imprenable sur les Alpes, avec en point d’orgue les majestueuses Dents du Midi. Le vaste séjour, baigné de lumière, s’ouvre sur une cuisine moderne entièrement...
Demande d'infos
CHF 890'000.-
Rennaz 4.95 km 4.5 2 2 132 m2 918 m2
Roccabella Immo vous présente ce magnifique appartement de 5.5 pièces situé dans les combles d’une résidence récente, construite en 2020. Offrant de beaux volumes, une luminosité exceptionnelle et des finitions haut de gamme, il séduit également par sa vue panoramique sur les Alpes, avec les majestueuses Dents du Midi en toile de fond. Le séjour, vaste et lumineux, s’ouvre sur une cuisine...
Demande d'infos
CHF 930'000.-
Villeneuve (VD) 5.84 km 5 2
Magnifique appartement de 5.5 pièces en rez-de-jardin. Cet appartement offre une belle cuisine très bien équipée, un grand salon avec accès à la terrasse et au jardin, 4 chambres à coucher, 2 salles de bains, un wc visiteur, une remise, une buanderie privative. Deux places de parking en sus complètent ce bel espace de vie. Plus d'informations : www.tissot-immobilier.ch Wunderschöne...
Demande d'infos
CHF 775'000.-
Montreux 7.15 km 2.5 1 60 m2
Ce lumineux appartement de 2.5 pièces d'environ 58m2 pondérés est à proximité immédiate du bord du lac, vue panoramique imprenable sur le lac et les Dents-du-Midi. Orienté Est et plein Sud, il jouit d'une surface habitable de ~58m2. L'appartement dispose d'une lumineuse pièce à vivre et d'une cuisine fonctionnelle donnant accès au balcon de 12m2. Ce dernier permet d'accueillir table...
Demande d'infos
SUR DEMANDE
Montreux 8.00 km 4.5 123 m2
Nouveau prix ! 4.5 pièces de 136 m2 pondérés avec Vue Lac Sur les hauteurs de Montreux, à Chernex, à quelques minutes à pied de l'école, des commerces ou encore de la gare, à 5 min de l'autoroute, ce magnifique appartement de 4.5 pièces avec balcon-terrasse et jardin commun, saura satisfaire les plus exigeants. En plus d’une vue splendide sur le lac à 180° et d'un cadre verdoyant,...
Demande d'infos
CHF 890'000.-
La Tour-de-Peilz 8.26 km 2.5 64 m2
Appartement 2,5 pièces - Dernier étage - Quartier calme/Centre villeDécouvrez ce superbe appartement de 2,5 pièces situé au dernier étage dans un quartier calme de la Tour-de-Peilz, bénéficiant d'une exposition sud-est qui inonde l'espace de lumière naturelle. Avec une vue partielle sur le lac et un agencement optimisé, cet espace lumineux offre un cadre de vie exceptionnel.Le logement, d'une...
Demande d'infos
CHF 790'000.-
Montreux 9.38 km 2.5 65 m2
Opportunité unique au centre de Montreux avec ce joli appartement de 2,5 pièces d'environ 65 m2 + une grande terrasse d'environ 40 m2 et un balcon d'environ 5 m2 au bénéfice d'une jolie vue sur le lac Léman et les Alpes.Situé au 4ème étage, ce bien partiellement rénové en 2022 se compose de la manière suivante:- Un hall d'entrée spacieux avec armoire intégrée à 2 portes.- Un espace séjour...
Demande d'infos
CHF 890'000.-
Corseaux 9.88 km 2.5 80 m2
Vue panoramique et jardin privatif - un cadre de vie d?exception!Ce charmant appartement se niche au sein d'un petit immeuble en PPE de seulement trois lots, offrant un cadre de vie privilégié alliant intimité et confort. Son emplacement idéal, à deux pas des commodités, séduit autant que sa situation paisible, sans vis-à-vis, et sa vue panoramique à couper le souffle sur le lac et les montagnes.Baigné...
Demande d'infos