Appartement 4.5 pièces à vendre à Savièse

CHF 605'000.-
4.5 2 1 120 m2
Annonce non active

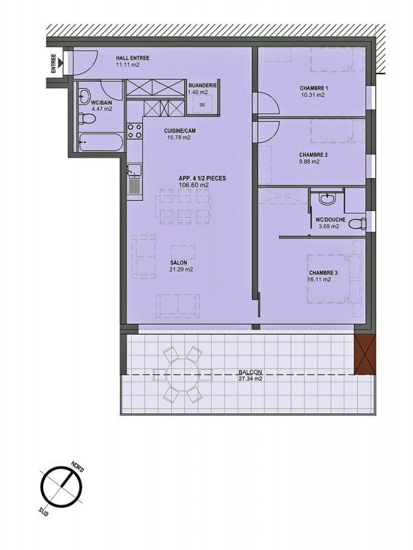
Appartement MINERGIE de 4,5 pièces avec balcon.

La Promotion “Les Moulins de Drône", se trouve au coeur du village (Alt. 870m) dans un quartier calme et avec une superbe vue sur les Alpes (rive gauche de Sion).

Ce bel appartement avec son balcon de 27 m2 vous séduira certainement, l'intérieur est disposé comme suit :

hall d'entrée avec armoires encastrées ainsi qu'un coin buanderie, une cuisine ouverte sur le coin à manger et le séjour donnant accès au balcon, une salle de bain/WC, deux chambres à coucher et une chambre parentale avec salle de douche/WC privée.

Une place de parc extérieure à Fr. 8'000.-- et/ou une place de parc intérieure à Fr. 30'000.-- et/ou un box extérieur à Fr. 28'000.- complètent ce bien en plus du prix de vente.

Le chauffage se fera par forage géothermique.
Les finitions sont au choix du preneur. Livraison : fin février 2020.
Chantier en cours de réalisation. Plus de 40% vendus !

Demander plus d'infos

Annonces similaires

CHF 650'000.-
Grimisuat 1.14 km 4.5 95 m2
Superbe appartement 4,5 pièces avec terrasseÀ Champlan (Grimisuat), découvrez ce superbe appartement de 4,5 pièces, construit en 2009 et parfaitement entretenu. Situé dans un environnement calme, il offre des matériaux de qualité et un cadre de vie idéal pour une famille. Les espaces sont lumineux et bien agencés, comprenant deux salles de bain ainsi qu'un séjour convivial ouvert sur une...
Demande d'infos
CHF 568'000.-
Sion 3.82 km 3.5
Appartement 3,5 pièces au rez de chaussée avec terrasse et pelouseRésidences Alegria à Uvrier (Sion)Nouvelle promotion de plusieurs petits immeubles contemporains à 2 pas de la zone commerciale d'Uvrier (commune de Sion) idéalement situé à l'entrée du village dans une zone résidentielle et ensoleillée à moins de 5 minutes de la capitale valaisanne Sion.Cette nouvelle promotion propose des...
Demande d'infos
CHF 550'000.-
Sion 3.82 km 3.5
Appartement 3,5 pièces au rez de chaussée avec terrasse et pelouseRésidences Alegria à Uvrier (Sion)Nouvelle promotion de plusieurs petits immeubles contemporains à 2 pas de la zone commerciale d'Uvrier (commune de Sion) idéalement situé à l'entrée du village dans une zone résidentielle et ensoleillée à moins de 5 minutes de la capitale valaisanne Sion.Cette nouvelle promotion propose des...
Demande d'infos
CHF 562'000.-
Sion 3.82 km 3.5
Appartement 3,5 pièces au rez de chaussée avec terrasse et grande pelouse orienté sud-ouest à SionNouvelle promotion d'une résidence contemporaine de 16 appartements neufs située sur la commune de Sion à proximité de toutes les commodités de la ville. Cette nouvelle résidence propose des logements allant du studio au 3,5 pièces avec balcon-terrasse et complétée avec des places de parcs...
Demande d'infos
CHF 670'000.-
Sion 4.96 km 3.5 112 m2
Superbe appartement loft de 3,5 piècesConstruit à l'origine pour le promoteur lui-même, cet appartement de 3,5 pièces a été pensé avec des matériaux de qualité et une attention particulière aux détails. Son design loft offre des volumes généreux et une atmosphère moderne et élégante.L'espace de vie principal séduit par son séjour lumineux, parfaitement agencé avec une cuisine entièrement...
Demande d'infos
CHF 515'000.-
Savièse 6.10 km 3.5 96 m2
Splendide 3.5 pièces contemporain avec jardin privé, situé à SavièseIdéalement niché dans le charmant quartier familial de Savièse, cet appartement baigné de lumière vous invite à profiter d'une vue imprenable sur les majestueuses montagnes depuis sa terrasse ensoleillée et son jardin privé. Doté de 2 chambres confortables, d'une salle de douche moderne, d'un WC séparé, ainsi que d'un...
Demande d'infos
CHF 605'000.-
Conthey 6.39 km 3.5 106 m2
Magnifique et lumineux 3,5 pièces bénéficiant d'une grande terrasse vitrée avec vitres coulissantes et vue panoramique dégagéeAppartement 3,5 pièces à ContheyCe magnifique appartement de conception contemporaine séduit par ses finitions design et sa spacieuse terrasse vitrée de 21 m² offrant une vue panoramique dégagée sur les montagnes.Idéalement situé dans un quartier résidentiel...
Demande d'infos
CHF 604'800.-
Conthey 6.39 km 3.5 115 m2
NEUF - Superbe Appartement 3,5 pièces avec grand balcon-terrasse de 40m2 au 2ème étageNouvelle construction - Appartement neuf - Dernier 3,5 pièces - Disponible de suite Votre nouvelle résidence aux finitions de qualités supérieures avec un emplacement idéal à Conthey à l'abri de toutes nuisances tout en étant à proximité directe de toutes les commodités !LE PALLADIONouvelle résidence...
Demande d'infos
CHF 599'000.-
Conthey 6.39 km 5.5 122 m2
Spacieux appartement de 5,5 pièces à ContheyDécouvrez ce charmant appartement, idéalement situé dans une zone résidentielle calme, offrant une exposition agréable et lumineuse. Cette propriété est idéale pour les familles à la recherche d'un cadre de vie paisible tout en étant à proximité de toutes les commodités.Au 2ème étage d'un immeuble très bien entretenu, cet objet se compose...
Demande d'infos