Locaux commerciaux 17 pièces à vendre à Annemasse

CHF 1'480'000.-
17 471 m2 345

Immeuble à rénover - 6 appartements 3 commerces

Cet immeuble à rénover est idéalement situé route de Genève à Annemasse : 10 mn à pieds de la gare, arrêt de tram à 100 m (aéroport accessible en 25 mn), commerces au pied de l'immeuble quartier rénové.

Une rénovation complète doit être envisagée. La déclaration de travaux a été réalisée et acceptée par la commune d'Annemasse (rénovation façades + clôture).


DESCRIPTION

Immeuble des années 60 érigé sur une parcelle de 345 m2, à rénover et transformer comme suit :

Niveau -1

* 6 caves
* Local technique

Niveau 0

* 1 commerce avec vitrine
* 2 dépôts pour artisans
* 4 garages individuels

Niveau 1

* Appartement type T3 avec terrasse et balcon

Niveau 2

* Appartement type T3 avec 2 balcons

Niveau 3

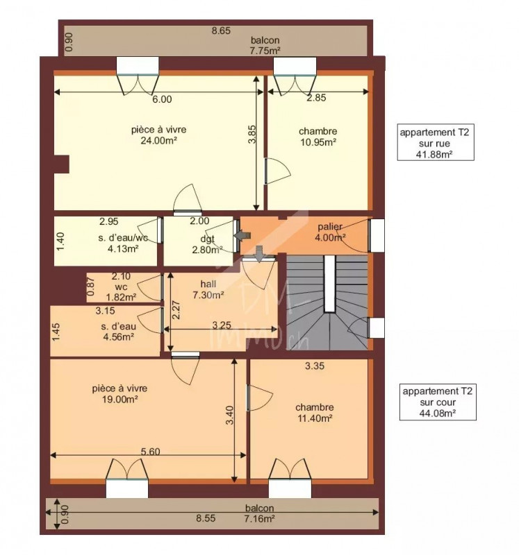
* 2 appartements type T2 avec balcon

Niveau 4

* 2 appartements type T2 mansardés

Dossier complet sur demande

Demander plus d'infos

Yann MAMESSIER

+41 78 200 01 13