Terrain à vendre à St. Stephan

CHF 155'000.-
684

Baulandparzelle mit 5-Zimmer Einfamilienhaus-Vorprojekt im Grünen

Verwirklichen Sie Ihren Traum vom eigenen Einfamilienhaus. Diese grosszügige Baulandparzelle liegt im bekannten Wander- und Skigebiet Adelboden-Lenk. Sie grenzt im Norden und Osten an die Landwirtschaftszone und bietet Ihnen wunderbare Weit- und Bergsicht.

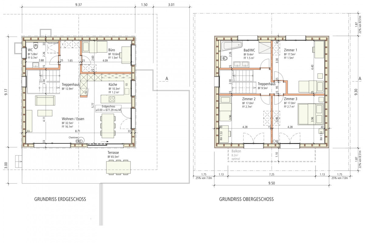
Zum Verkauf steht das Grundstück mit einer Fläche von 684 m² inklusive eines 5-Zimmer-Einfamilienhaus-Vorprojekts mit Doppelgarage.

Die vollständigen Projektpläne (DWG-Dateien) sind im Kaufpreis enthalten und bieten Ihnen die Möglichkeit, unmittelbar auf der bestehenden Planung aufzubauen. Eine Architekturverpflichtung besteht nicht, sodass Ihnen bei der weiteren Ausgestaltung volle Freiheit bleibt.

Bitte beachten Sie, dass auf der Parzelle ausschliesslich ein Erstwohnsitz realisiert werden darf.

Haben wir Ihr Interesse geweckt? Auf Anfrage stellen wir Ihnen gerne die Verkaufsdokumentation zu.

IMMOprima AG, Lukas Schriber 033 223 70 70

www.immoprima.ch





Demander plus d'infos

Lukas Schriber

0041332237070