Gewerbe zu vermieten in Zwingen

CHF 7'600.-
2 833 m2 CHF 1'810.-
Anzeige nicht aktiv

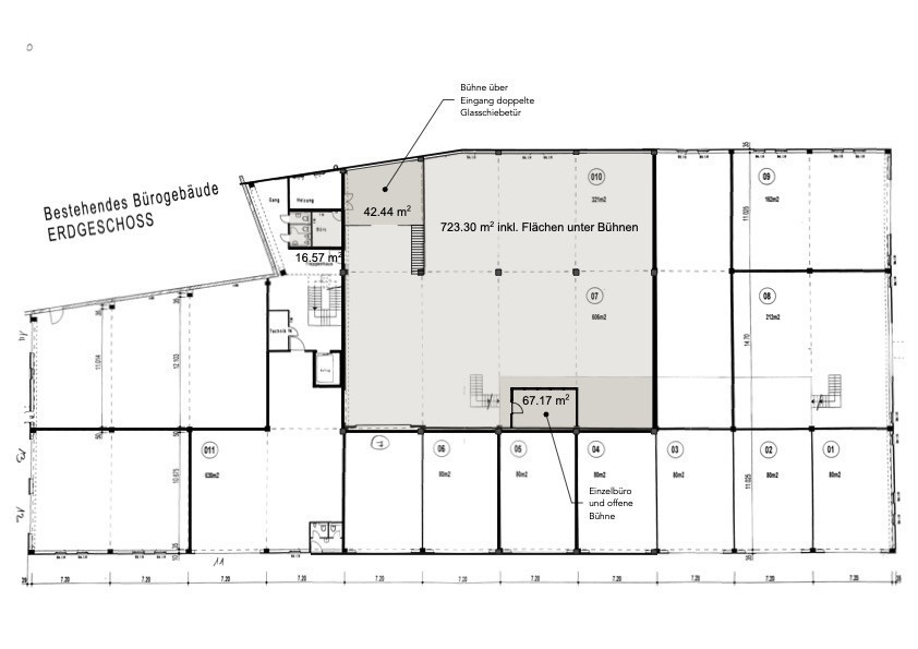
Industriehalle 6m hoch

Lage im Industriegebiet zwischen Laufen und Zwingen,
offene Halle mit Zugang über 2 x doppelte Glasschiebetüre (Wärmeschleuse). Nebeneingang. Erweiterbar mit Halle ca. 80m2 mit eigenem Industrietor. Abtrennung über Feuerschutztor 5m x 5m. Weitere Räume und auch grosse Flächen im Obergeschoss mit Schwerlastlift oder mittelfristig in weiteren Gebäuden auf dem Areal möglich. Verkaufslokal möglich. Fassade: Blech Sandwichplatte geschäumt, gewellt, Farbe silber. Industrietor 5m x 5.5m für LKW. Zwei eingebaute Bühnen für Bewirtschaftungsteil, eine mit geschlossenem Büro. Leistungsfähige Heizung, Heizgebläse in der Halle. Vorplatz mit Stapler befahrbar. Ablad von Sattelzug auf Vorplatz möglich. Baujahr 2006

Infos anfordern