Appartement 3 pièces à louer à Arnex-sur-Orbe

CHF 1'770.-
3 100 m2 CHF 130.-
Annonce non active

Appartement Arnex-sur-Orbe - 3 pièces

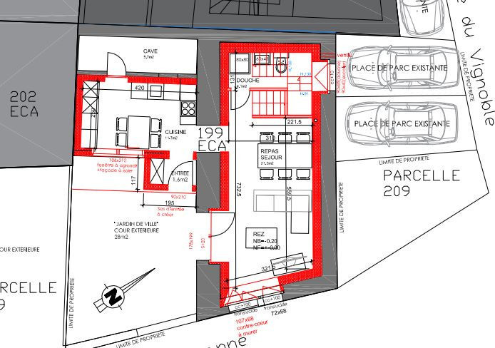
Appartement en triplex neuf avec jardin de ville, dans un immeuble individuel rénové.
Grand 3,5 pièces de 100 m2 sur trois étages avec cours intérieure et place de parking. L’appartement est l’unique logement d’un rural transformé, ce qui en fait une maison individuelle sans parties communes.
Au rez, se trouve une cuisine salle à manger et une grande pièce à vivre ainsi qu’un wc visiteur avec douche à l’italienne. Les deux pièces du rez possèdent une baie vitrée donnant sur la cour intérieure. Au premier, une chambre ou bureau avec une grande salle de bain avec baignoire équipé d’une colonne de lavage. Puis, au deuxième, une grande chambre en attique. La cage d’escalier est spacieuse, et peut accueillir divers rangement et plantes.
Parquet au sol dans les chambres, carrelage dans la cuisine, le séjour et les salles d’eau. Le village d’Arnex-sur-Orbe dispose d’une gare, à 700m de l’appartement, qui rejoint Lausanne en 30 min, l’autoroute est également proche : Lausanne 30 min, Yverdon 20 min et Orbe est à 5 min. de voiture. Le village dispose d’une épicerie-poste et Le collège d’Arnex (classes primaires) est à 500m de l’appartement.
Une place de parc est disponible, avec possibilité d’installer une borne de recharge pour voiture électrique.
Disponibilité dès le 1er octobre 2022, ou à convenir (possible avant). Loyer : CHF 1770.- + charges CHF 130.- + place de parc CHF 60.- soit CHF 1960.- au tout compris Information et visites : + 41 79 376 69 02