Appartement 2.5 pièces à louer à Bas-Intyamon

CHF 1'150.-
2.5 1 60 m2 CHF 125.-
Annonce non active

A 9 MINUTES DE BULLE : Appartement 2.5 pièces de standing à louer

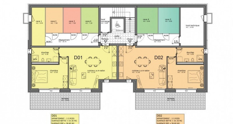
Dans une promotion récente de 2018, nous vous proposons un appartement de standing, bien équipé avec des matériaux de qualité. Il se situe au rez-de-chaussée d'un petit immeuble de 6 appartements et comprend une surface habitable d'environ 53 m2 avec une terrasse de 19 m2.

Le loyer se compose comme suit : CHF 1'150.- + CHF 125.- de charges + CHF 80.- pour la place de parc couverte; soit un loyer total de CHF CHF 1'355.-.

Le logement comprend une grande cave privative.

L'appartement est distribué de la manière suivante :

- Une cuisine entièrement équipée ouverte sur le séjour de 31.50 m2
- Une chambre à coucher de 15.30 m2
- Une salle de douche / WC de 6.50 m2

Le séjour ainsi que la chambre donnent accès à la terrasse.

Un espace pour la colonne de lavage est prévu.

La construction est conforme aux normes pour personne à mobilité réduite.

Disponibilité : 1er avril 2022.

Pour les visites, vous pouvez contacter la locataire actuelle au 076/697.26.54.

Demander plus d'infos