Appartement 5 pièces à louer à Vernier

CHF 3'065.-
5 2

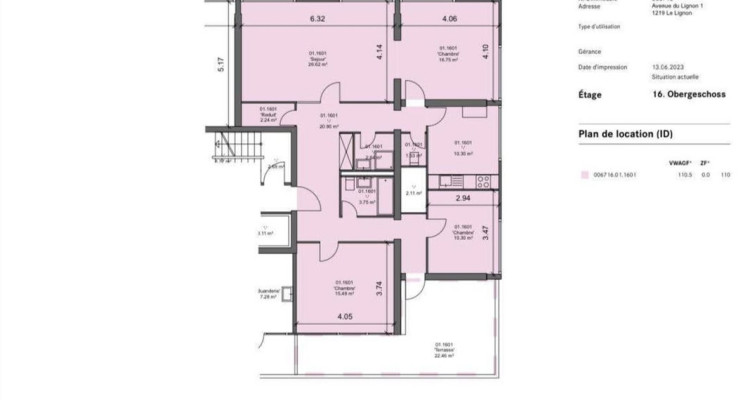
Appartement 5 pièces situé au Lignon

Nous vous proposons un appartement de 5 pièces situé au Lignon

L' appartement se trouve aux 16ème étage avec ascenseur et se compose comme suit :

- Une cuisine équipée
- Un salon
- Trois chambres à coucher
- Une Salle de bain avec baignoire et WC
- Une Salle de bain avec douche
- WC visiteur
- Un grand Balcon
- Une Cave
- Une place de parc

Disponible pour le 30/04/2026

Loyer mensuel : 2'140 CHF charges et place de parc comprises puis 3'065 CHF à partir du 01.03.2027

Ce bien à éveillé votre intérêt ?

Nous vous laissons donc le soin de nous contacter.

Agence de relocation

Demander plus d'infos

Issam Inwards immo

022 / 716 92 71

Annonces similaires

CHF 2'750.-
Genève 3.67 km 3 1 55 m2
Appartement 3 pièces lumineux – Rue de l'Arquebuse 9, 1204 Genève (PAS DE FRAIS D'AGENCE) (English below) Découvrez ce petit mais très bel appartement moderne de 3 pièces, idéalement situé, au 4ème étage d’un immeuble résidentiel calme et bien entretenu. Avec ses 55 m² habitables et une cave de 10 m², il offre un cadre de vie confortable et lumineux, à proximité immédiate du...
Demande d'infos
CHF 2'800.-
Genève 3.96 km 4.5 1 90 m2
the hyperlink text Un appartement de 4,5P au 6ème étage qui se compose comme suit: - Un hall d'entrée - Deux chambres à coucher séparées - Une chambrette - Un séjour - Une belle cuisine agencée - Une salle de bain - wc séparés - balcon N'hésitez pas à nous contacter pour plus de renseignements, nous ferons au plaisir de vous répondre. Vous pouvez joindre Mme....
Demande d'infos
CHF 2'800.-
Genève 3.96 km 4.5 1 92 m2
the hyperlink text Un appartement de 4,5P au 6ème étage qui se compose comme suit: - Un hall d'entrée - Deux chambres à coucher séparées - Une chambrette - Un séjour - Une belle cuisine agencée - Une salle de bain - wc séparés - balcon N'hésitez pas à nous contacter pour plus de renseignements, nous ferons au plaisir de vous répondre. Vous pouvez joindre Mme....
Demande d'infos
CHF 3'000.-
Genève 3.96 km 4.5 1 85 m2
the hyperlink text Un magnifique appartement de 4,5 pièces situé dans la région des Eaux Vives au 3ème étage. Il se compose comme suit: - un hall d'entrée - un spacieux séjour avec balcon - une cuisine agencée et équipée - 2 chambres - deux salles de bain - 2 WC L'ascenseur, cave. Le prix du loyer : 3'000.- + 300.- de charges Proche de toutes les commodités....
Demande d'infos
CHF 2'860.-
Genève 4.76 km 3 1
VestaSWISS Immobilier vous présente : Appartements meublés de 3 pièces - AVENUE DE FRANCE 4, GENEVE Pour un séjour sans soucis nous proposons des appartements meublés ; 3 pièces pour une superficie de de 30 à 40m2 à la Résidence De France située à quelques minutes à pied du Parc Mon-Repos et du lac, accès direct à l’ONU par le tram (arrêt à 3 mn à pied). Loyer mensuel...
Demande d'infos
CHF 3'400.-
Cartigny 6.53 km 5 2
Nous vous proposons un appartement de 5 pièces situé à Cartigny L'appartement se trouve aux 2ème étage sans ascenseur et se compose comme suit : - Une cuisine équipée - Un salon - Trois chambres à coucher - Salle de bain avec baignoire + WC - Salle de bain avec douche + WC - Un grand jardin privatif - Une place de parc Disponible pour le 01/05/2026 Loyer mensuel : 3'400.-...
Demande d'infos
CHF 3'050.-
Chêne-Bougeries 7.32 km 5.5
Nous vous proposons un appartement de 5,5 pièces situé à Chêne Bougeries. L' appartement se trouve aux 2ème étage avec ascenseur et se compose comme suit : - Une cuisine équipée - Un salon - Trois chambres à coucher - Salle de bain avec baignoire - WC séparé avec branchement machine à laver - Un Balcon - Une Cave Disponible pour le 30/04/2026 Loyer mensuel : 3'050.-...
Demande d'infos
CHF 3'050.-
Chêne-Bougeries 7.32 km 5.5 1 84 m2
Nous avons le plaisir de vous proposer un appartement de 5,5 pièces au 2ème étage avec vue sur Salève et les Alpes, situé à Chêne Bougeries 1224. Caractéristiques du bien : Cet appartement lumineux et bien agencé offre : • Une cuisine entièrement équipée • Un espace de vie lumineux • Une salle de bains • Trois chambres à coucher • WC séparé • Connexion...
Demande d'infos
CHF 3'350.-
Collonge-Bellerive 10.47 km 4 1 1 83 m2
Situé au 1er étage d'un petit immeuble PPE de six logements, cet appartement traversant de 4 pièces d'environ 83 m² bénéficie d'un cadre résidentiel calme et verdoyant, dans l'une des communes les plus prisées de la rive gauche genevoise. L'immeuble, plein de caractère, dispose d'une cage d'escalier architecturalement remarquable qui ne laisse pas indifférent. Le séjour, spacieux et...
Demande d'infos