Appartement 5 pièces à vendre à Puplinge

CHF 1'510'000.-
5 132 m2
Annonce non active

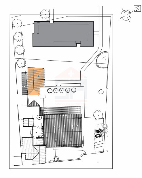
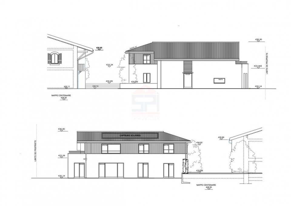
Projet neuf à Puplinge - Livraison 2022

Située au coeur de Puplinge, ce nouveau projet neuf sera composé de deux appartements en PPE avec garage en sous sol.

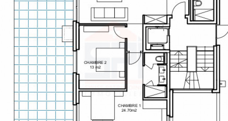
Le futur 5 pièces de 132 m2 en rez-de-chaussée sera distribué de la manière suivante, un hall avec un WC visiteurs et une cuisine ouverte sur le séjour et la salle à manger avec un accès à la terrasse de 75m2.
L'espace nuit comportera 3 chambres avec une salle de bains et une salle de douche.
Deux places de parking et une cave complètent ce bien.

Des ajustements sont possibles par le futur acquéreur.
Livraison prévue pour Pâques 2022.

Demander plus d'infos

Annonces similaires

CHF 1'520'000.-
Presinge 1.77 km 5 2 2 145 m2
Un magnifique duplex rénové et confortable, où vous vous sentirez tout de suite chez vous, avec des couleurs et matériaux naturels. L’appartement vient d’être rénové en 2022 d'une manière élégante tout en gardant le charme de la maison avec ses belles poutres en bois et ses hauts plafonds.. Son emplacement est parfait et idéal pour les amoureux de la nature au sein de notre magnifique...
Demande d'infos
CHF 1'520'000.-
Presinge 1.77 km 4.5 2 145 m2
Situé dans la charmante commune de Presinge, à l’orée d’une forêt paisible aux sentiers bucoliques, ce magnifique appartement en duplex allie le charme de l’ancien à un confort moderne raffiné. Niché dans un quartier résidentiel verdoyant, il offre un cadre de vie serein tout en permettant un accès rapide et aisé au centre de Genève. L’appartement se trouve dans un bâtiment du...
Demande d'infos
CHF 1'490'000.-
Thônex 2.42 km 6.5 137 m2
Face à la rivière le Foron et sa forêtBel appartement, niché dans un emplacement paisible tout en restant à proximité des commodités locales, des écoles et des espaces verts, idéal pour les familles à la recherche d'un lieu de vie alliant confort et fonctionnalité.Les baies vitrées inondent l'intérieur de lumière naturelle, créant une atmosphère chaleureuse et accueillante dans chaque...
Demande d'infos
CHF 1'519'000.-
Thônex 2.42 km 4 108 m2
Appartement de standing dans un quartier résidentiel priséDécouvrez ce projet de construction de haut standing, niché dans un cadre paisible qui promet une ambiance lumineuse et agréable. Cet appartement de 100 m², situé au premier étage, bénéficie d'une exposition sud qui inonde chaque pièce de lumière naturelle. Avec ses deux chambres à coucher spacieuses et ses deux salles de bains...
Demande d'infos
CHF 1'510'000.-
Chêne-Bourg 3.14 km 4 91 m2
Superbe appartement moderne avec grand jardin de 400m2Au calme absolu, niché dans un écrin de verdure et dans un quartier résidentiel prisé de Chêne-Bourg, ce bel appartement THPE en rez-de-jardin de 91m2 PPE est une opportunité à saisir. Vous pourrez profiter de la sérénité tout en ayant un accès facile à toutes les commodités (bus, commerces à moins d'une minute). Pour la partie jour,...
Demande d'infos
CHF 1'645'000.-
Chêne-Bougeries 3.88 km 4 106 m2
Discover a unique residential project, designed to offer exceptional quality of life in perfect harmony with nature. Its modern, refined architecture blends elegantly into a verdant environment, where every detail has been designed with your comfort and well-being in mind. Vast bay windows flood the interiors with natural light, revealing warm, spacious and soothing living spaces. With a generous...
Demande d'infos
CHF 1'450'000.-
Meinier 4.01 km 5 224 m2
Swiss Patrimoine Immobilier vous présente ce superbe attique contemporain THPE de 5 pièces avec vue dégagée et calme absolu. Situé au coeur d'un environnement paisible et verdoyant, ce magnifique appartement en attique certifié Minergie de 224m² , construit en 2021, allie confort moderne et volumes exceptionnels.Voici la distribution :- Grande pièce de vie- Cuisine ouverte et équipée- Vaste...
Demande d'infos
CHF 1'650'000.-
Corsier (GE) 5.96 km 5 2 130 m2
Abby Bryand présente : L' Appartement de jardin familial - Appartement de 130 m2 avec terrasse de 16 m2 et jardin - 3 chambres, 2 salles de bains, 1 WC visiteur, 1 espace bureau - Jardin privé et terrasse - Prix: 1 650 000.- Situé à Corsier, le Family Garden Apartment dispose d'un jardin privé et est construit selon des normes élevées de fonctionnalité et de confort. La cuisine est...
Demande d'infos
CHF 1'590'000.-
Corsier (GE) 5.96 km 5 2 130 m2
Si vous êtes à la recherche d’un beau salon spacieux, d’une cuisine neuve entièrement équipée entourée de deux terrasses et d’un jardin, cet appartement entièrement rénové est idéal pour vous. Situé à Corsier centre, le « Family Garden Apartment » dispose d’un grand hall d’entrée menant au salon spacieux et lumineux entouré par ses terrasses et son jardin privé, une cuisine...
Demande d'infos