Maison 5.5 pièces à vendre à Denges

CHF 1'190'000.-
5.5 120 m2
Annonce non active

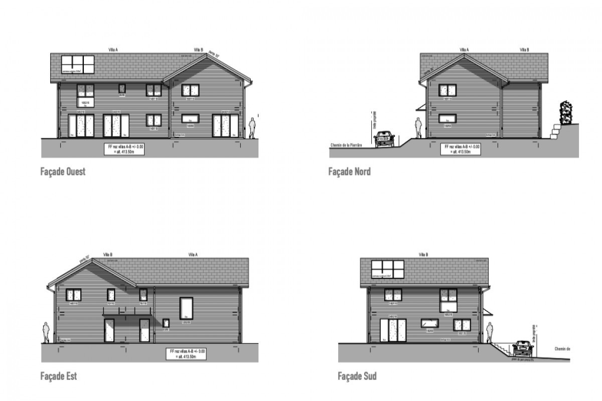
Projet de 2 villas jumelles - Idéalement située au calme

Projet de 2 villas jumelles - Idéalement située au calme

Dossier descriptif complet de construction sur demande.

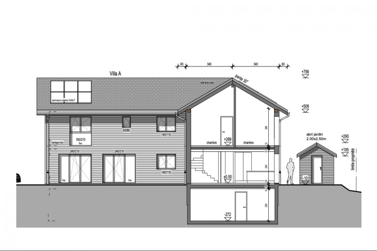
Rez: Entrée, séjour, cuisine, bureau, wc visiteur.
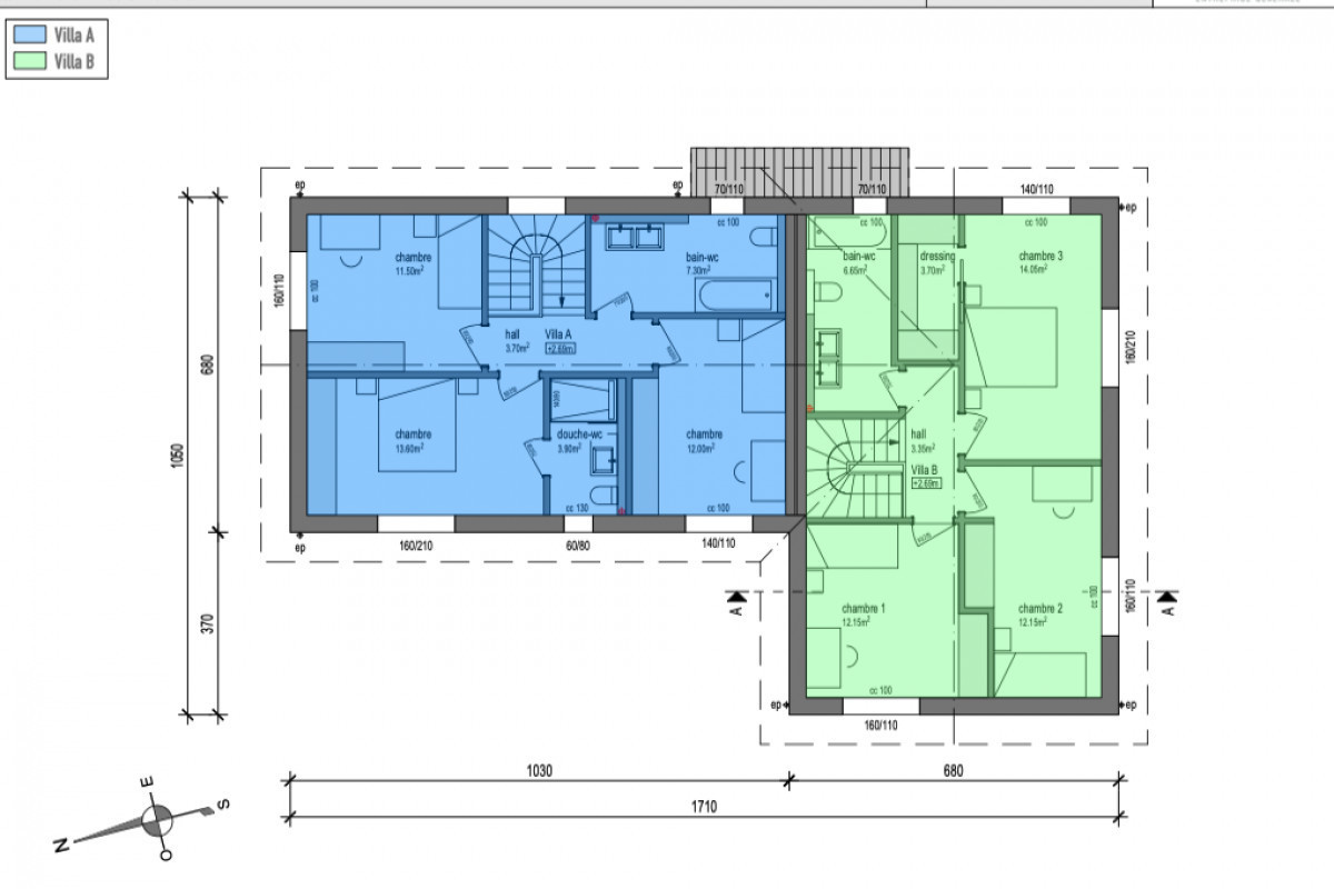
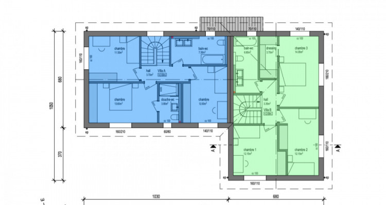
1er étage: 3 chambres, 2 salles de bains (dont 1 suite parentale avec wc-douche).
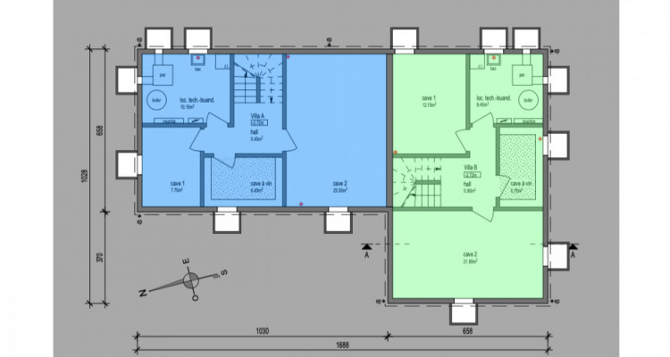
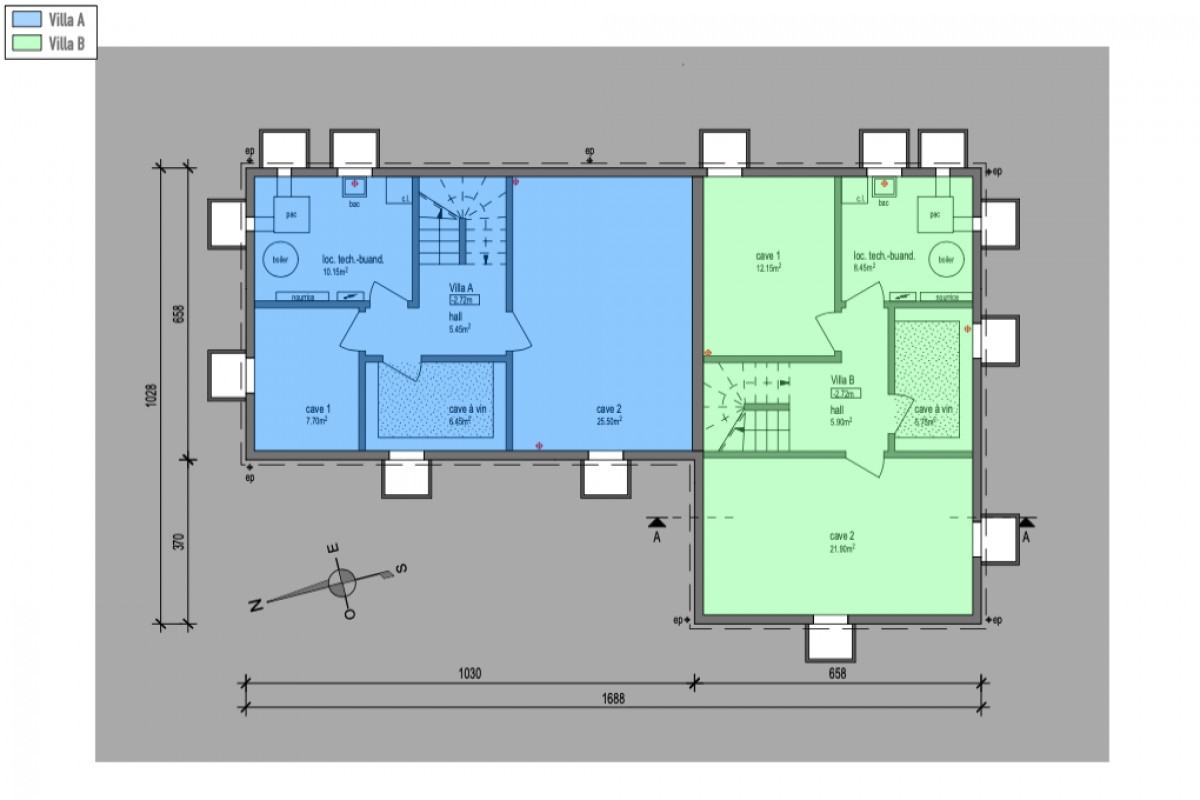
Sous-sol: Buanderie, local technique, cave, cave à vin.
Ext: Gazon, haie de réparation, plantation talus, arborisation selon demande communale.

Villas prérésevées > Contactez-nous afin d'être averti prioritairement de toute modification.

Adresse exacte disponible sur neho.ch.
VOUS SOUHAITEZ VISITER ? MERCI DE BIEN VOULOIR VOUS INSCRIRE SUR https://neho.ch/p/1026-20-3 D'ABORD

Demander plus d'infos

Annonces similaires

CHF 1'330'000.-
Cheseaux-sur-Lausanne 7.55 km 5.5 3 2 160 m2
Nichée dans un quartier résidentiel paisible et verdoyant, cette charmante maison contiguë de 160 m² habitables (240 m² utiles) offre un confort de vie rare à seulement 15 minutes de Lausanne. Idéalement pensée pour une famille, elle séduit par ses volumes généreux, sa luminosité et sa disposition parfaitement fonctionnelle. Dès l’entrée, vous découvrirez un vaste séjour chaleureux,...
Demande d'infos
CHF 1'290'000.-
Sullens 7.65 km 5.5 268 m2 446 m2
Projet à fort potentiel : maison villageoise avec grange et jardinAu c?ur du village, dans une ruelle paisible à l'abri de toute nuisance, cette authentique maison villageoise avec sa grange attenante offre un cadre rare, chargé de charme et de potentiel. La parcelle dispose d'un beau jardin arboré à l'arrière qui prolonge la maison dans un écrin de verdure.Actuellement, la propriété se compose...
Demande d'infos
CHF 1'200'000.-
Villars-sous-Yens 8.78 km 8 321 m2 211 m2
Potentiel de créer 2 appartements dans cette belle maison villageoiseBeaucoup de potentiel pour grâce à un superbe volume permettant de créer 2 logements dans cette belle bâtisse située à moins de 10 min de Morges sur un chemin calme au centre du village.Elle dispose de trois portes d'entrée ce qui facilite l'accès aux différents étages. Selon sa disposition actuelle, la maison bénéficie...
Demande d'infos
CHF 1'200'000.-
Epalinges 9.84 km 4.5 167 m2 84 m2
Joli maison mitoyenne de 4.5 pièces au calme absolu à ÉpalingesSituée dans une zone résidentielle calme, en bordure de zone verte inconstructible et à proximité immédiate des transports et des commerces du centre d'Épalinges, cette jolie maison mitoyenne d'une surface habitable nette de 132m² est une opportunité à saisir immédiatement.Répartie sur trois étages plus un sous-sol avec accès...
Demande d'infos
CHF 1'350'000.-
Apples 10.15 km 5.5 189 m2 500 m2
Projet 2 villas neuves Minergie P avec permis de construireLe prix d'achat d'une villa finie est à partir de 1'350'000.-, selon les options que vous choisirez : https://www.villa-apples.ch/Près de Morges, dans le village de Apples (commune de Hautemorges) à la rue Le Tirage 2, villa jumelée sur plans, Minergie P, orientée sud/ouest avec un très bel ensoleillement et sur une parcelle arborisée...
Demande d'infos
CHF 1'290'000.-
Froideville 14.38 km 5.5 176 m2 1508 m2
UN CADRE DE VIE PRIVILÉGIÉ À FROIDEVILLE IDÉAL POUR VOTRE FAMILLELaissez-vous charmer par cette belle maison individuelle de 5.5 pièces, située dans un secteur résidentiel paisible et verdoyant. Établie sur une belle parcelle de 1'508 m², elle bénéficie d'une exposition sud-ouest offrant un ensoleillement continu et une atmosphère baignée de lumière naturelle.DES ESPACES INTÉRIEURS FONCTIONNELS...
Demande d'infos