Maison 4.5 pièces à vendre à Vouvry

CHF 722'400.-
4.5 2 3 171 m2
Annonce non active

FOTI IMMO : Villa mitoyenne en terrasse, idéale pour une famille !

La Résidence “Les Châtaigniers“ se compose de 6 villas mitoyennes MINERGIE en terrasse avec une superbe vue sur la plaine du Rhône et les montagnes environnantes dans un cadre calme et verdoyant. Ce logement est idéal pour une famille !

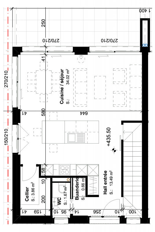
Le sous-sol est composé d'un hall et d'un espace disponible. Le rez bénéficie d'un hall d'entrée, un WC visiteurs, une buanderie, une cuisine ouverte sur le séjour et dotée d'un cellier, et terrasse-jardin.

A l'étage vous découvrirez une belle suite parentale avec dressing et salle de douche/WC privative, une salle de bain/WC et trois chambres à coucher.

3 places de parc couvertes à Fr. 20'000.--/unité complètent ce bien en plus du prix de vente.

Les finitions intérieures sont au gré du preneur.

Demander plus d'infos

David pour FOTI Immo

+41 78 870 80 08

Annonces similaires

CHF 650'000.-
Port-Valais 4.92 km 6 265 m2 96 m2
Exclusif: Petit immeuble mixte à transformerSitué en plein coeur du village du Bouveret à  proximité immédiate des commodités, ce bâtiment construit en 1935 est une  très belle opportunité d'investissement.Réparti sur 5 niveaux, il propose 1 surface commerciale et 1 appartement à créer sur 3 niveaux, ainsi que  2 places  de parc.Le rez permet d'accueillir ...
Demande d'infos
CHF 720'000.-
Ollon 10.93 km 4.5 175 m2 254 m2
Maison de charme 5 pièces au centre d'OllonCette propriété de caractère offre un mélange unique de charme traditionnel et de modernité, avec une rénovation de standing qui saura satisfaire les amateurs de confort et d'authenticité, alliant le confort moderne au cachet de l'ancien. Située à deux pas des commodités d'Ollon, ses cinq pièces spacieuses et lumineuses sont pensées pour offrir...
Demande d'infos
CHF 695'000.-
Ollon 10.93 km 10 255 m2 323 m2
Exclusif : Maison villageoise de deux logements à St-Triphon VDSur le flanc ensoleillé de la colline de St-Triphon (Commune de Ollon-Villars), cette maison villageoise attend une nouvelle famille pour un projet de rénovation et sa mise en valeur.Actuellement il y a un appartement de 2.5 pièces au rez de chaussée avec cuisine et salle de bain, et à l'étage, un appartement de 6.5 pièces sur deux...
Demande d'infos